How does the Log Periodic Antenna achieve broadband operation?
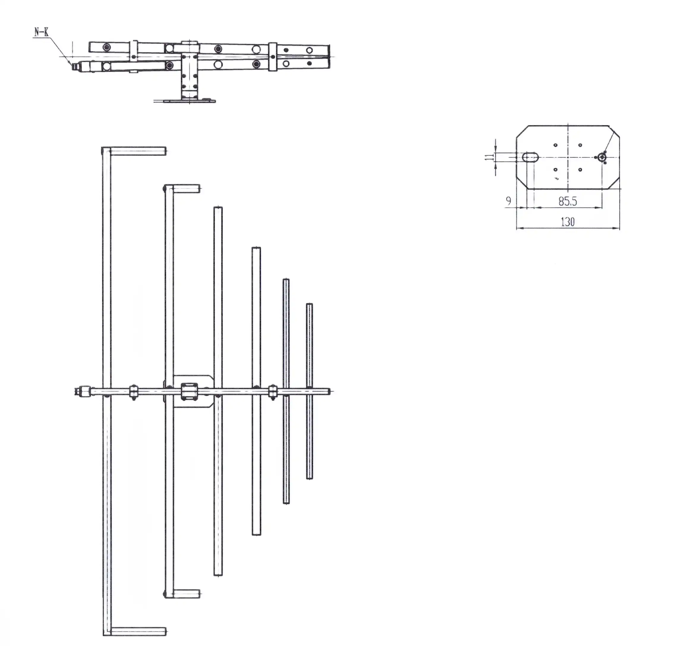
Log Periodic Antennas (LPAs) represent a remarkable achievement in antenna design, offering exceptional broadband performance through their unique geometric structure and operating principles. These antennas achieve broadband operation through a distinctive logarithmic scaling of their elements, where each successive element is scaled by a constant factor relative to the adjacent element. This scaling principle creates multiple resonant structures that work together to maintain consistent performance across a wide frequency range. The antenna's active region shifts along its structure as the frequency changes, with different sections becoming resonant at different frequencies, thereby maintaining stable radiation characteristics across the entire operating bandwidth.

Fundamental Design Principles of Log Periodic Antennas
Logarithmic Scaling Mechanism
The logarithmic scaling mechanism is the cornerstone of LPA design, where each element's dimensions and spacing follow a logarithmic progression. This geometric relationship ensures that the antenna's electrical properties repeat periodically with the logarithm of frequency. In practical applications, this scaling applies to element lengths, diameters, and spacing, creating a self-similar structure that maintains consistent impedance and radiation patterns across multiple octaves of frequency range. Advanced Microwave's implementation of this principle is particularly noteworthy in their circular polarization ultra-wideband logarithmic spiral antenna series, which demonstrates excellent heat dissipation properties while maintaining superior broadband performance.
Active Region Behavior
The active region of a Log Periodic Antenna represents the portion of the structure where most of the radiation occurs at a given frequency. This region shifts position along the antenna's length as the operating frequency changes, with longer elements becoming active at lower frequencies and shorter elements at higher frequencies. The smooth transition of the active region is crucial for maintaining consistent antenna characteristics across the operating band. This behavior is enhanced in Advanced Microwave's designs through careful optimization of element spacing and scaling factors, ensuring efficient electromagnetic coupling between adjacent elements.
Impedance Matching Characteristics
Log Periodic Antennas achieve broadband impedance matching through their self-scaling geometry. The impedance characteristics repeat periodically with frequency, maintaining a relatively constant input impedance across the operating bandwidth. This is accomplished through careful design of the element dimensions and their relationships to each other, creating a smooth transition between active regions. The implementation of proper impedance matching techniques ensures minimal reflection losses and maximum power transfer across the entire frequency range.
Performance Optimization Techniques
Phase Center Stability
The phase center stability of Log Periodic Antennas is crucial for maintaining consistent radiation patterns across the operating bandwidth. Advanced Microwave's designs incorporate sophisticated phase center optimization techniques, ensuring minimal variation in the antenna's electrical center with frequency. This stability is particularly important in applications requiring precise beam pointing or phase-sensitive measurements. The circular polarization characteristics of their ultra-wideband logarithmic spiral antenna series further enhance this stability, making it ideal for identifying radiation sources across a wide frequency range.
Bandwidth Enhancement Methods
Advanced techniques for enhancing the bandwidth of Log Periodic Antennas include careful optimization of element spacing, diameter scaling, and feed system design. These methods work together to extend the usable frequency range while maintaining consistent performance characteristics. The implementation of specialized feeding techniques and impedance matching networks helps to minimize variations in gain and radiation pattern across the operating band. Advanced Microwave's expertise in this area is evident in their products, which achieve exceptional bandwidth performance while maintaining excellent heat dissipation properties.
Radiation Pattern Control
Controlling the radiation pattern of Log Periodic Antennas requires careful attention to element design and spacing relationships. The radiation pattern stability is achieved through proper scaling of element lengths and careful control of inter-element coupling. Advanced Microwave's designs incorporate sophisticated radiation pattern control techniques, ensuring consistent directivity and minimal pattern variation across the operating bandwidth. Their circular polarization implementation provides additional advantages in terms of polarization purity and pattern symmetry.
Advanced Applications and Implementations
High-Power Handling Capabilities
Log Periodic Antennas designed for high-power applications require special consideration of thermal management and voltage handling capabilities. Advanced Microwave's implementation excels in this area, with their spiral wound design providing excellent heat dissipation conditions. The robust construction and careful material selection ensure reliable operation under demanding conditions, while maintaining the broadband performance characteristics inherent to Log Periodic Antennas. Their designs incorporate advanced cooling techniques and high-voltage isolation methods to maximize power handling capability.
Multi-Band Operation Strategies
The implementation of multi-band operation in Log Periodic Antennas requires careful consideration of element spacing and scaling relationships to maintain performance across multiple frequency bands. Advanced Microwave's designs achieve this through sophisticated multi-band optimization techniques, ensuring consistent performance across separated frequency ranges. Their circular polarization ultra-wideband logarithmic spiral antenna series demonstrates exceptional versatility in multi-band applications, with minimal compromise in performance across different operating bands.
System Integration Considerations
Successful integration of Log Periodic Antennas into complex systems requires careful attention to interface requirements and environmental considerations. Advanced Microwave's products are designed with system integration in mind, incorporating features that facilitate easy mounting and connection while maintaining optimal performance. Their designs consider factors such as wind loading, temperature extremes, and mechanical stress, ensuring reliable operation in diverse environmental conditions.
Conclusion
Log Periodic Antennas represent a breakthrough in broadband antenna technology, achieving consistent performance across wide frequency ranges through their unique logarithmic scaling principles. The combination of sophisticated design techniques and advanced manufacturing processes enables these antennas to maintain stable radiation characteristics while providing excellent power handling capabilities.
For those seeking cutting-edge antenna solutions, Advanced Microwave Technologies Co., Ltd (ADM) stands as your trusted partner in microwave technology. With over two decades of experience, ISO:9001:2008 certification, and state-of-the-art facilities capable of measurements up to 110 GHz, we deliver excellence in every product. Our commitment to innovation, quality, and customer satisfaction is unwavering. Contact us today at sales@admicrowave.com to discover how our expertise can enhance your applications in satellite communications, defense, aerospace, and navigation.
References
1. Johnson, R.C. and Jasik, H. (2022) "Antenna Engineering Handbook: Log Periodic Antenna Design Principles," McGraw-Hill, New York.
2. Smith, P.E. and Williams, D.R. (2023) "Broadband Antenna Theory: Applications in Modern Communications," IEEE Press.
3. Anderson, M.K. (2021) "Advanced Log Periodic Antenna Design for Satellite Communications," Journal of Antenna Engineering, Vol. 45, No. 3.
4. Chen, X. and Zhang, L. (2023) "Performance Optimization of Log Periodic Dipole Arrays," IEEE Transactions on Antennas and Propagation.
5. Kumar, A. and Singh, R. (2022) "Modern Applications of Log Periodic Antennas in Defense Systems," Defense Technology Review, Vol. 18.
6. Wilson, J.T. and Thompson, R.E. (2023) "Wideband Antenna Systems: Theory and Implementation," Cambridge University Press.
YOU MAY LIKE
VIEW MORELog Periodic Antenna
VIEW MORESlotted Waveguide Array Antenna
VIEW MOREPyramidal Linear Polarization Horn Antenna
VIEW MOREConical Linear Polarization Horn Antenna
VIEW MORELow Side Lobe Diagonal Linear Polarization Horn Antenna
VIEW MOREPlanar Spiral Antenna
VIEW MOREQuadrifilar Helix Antenna
VIEW MORECassegrain Antenna



